Travail With Us

Interior graphics; branding; signage & wayfinding

Design a custom space for Travail With Us—an adult day service—which meets the needs of both care providers and patients, depicts Travail With Us’s brand, and abides by building laws.

This project was completed as an assignment for my MFA in Visual Communication Design at Purdue University, in collaboration with the Interior Design discipline.

Objective


Research

For our research, we performed a site visit at Travail With Us’s prospective new space in Gary, IN. We took many pictures of the building, and we interviewed leaders from the organization about their current space, the specific needs of an adult day service, and their hopes for the new space.

For example, they had some issues with their commercial kitchen and were hoping for more space in the new location. They also specified the need for shower stalls and laundry machines on each floor. Finally, they emphasized that rainbows are a signature graphic element in their old space. All these insights and more were invaluable to our design process!

We also did secondary research on Travail’s existing brand, mostly through their website and photos on their Facebook page. We could see that their space was vibrant, joyous, and welcoming; these were keywords that we took forward into our design work. We also got some idea of how they utilize their current wall space, floor space, table space, etc.


Interior Design

Interior Design efforts on this project were completed by Lochana Bolisetty.

Our team’s first task was to understand all the requirements of the space and then design a floor plan that could accommodate those needs in an intuitive layout. I was involved in these discussions, though Lochana made the final design decisions in this regard.

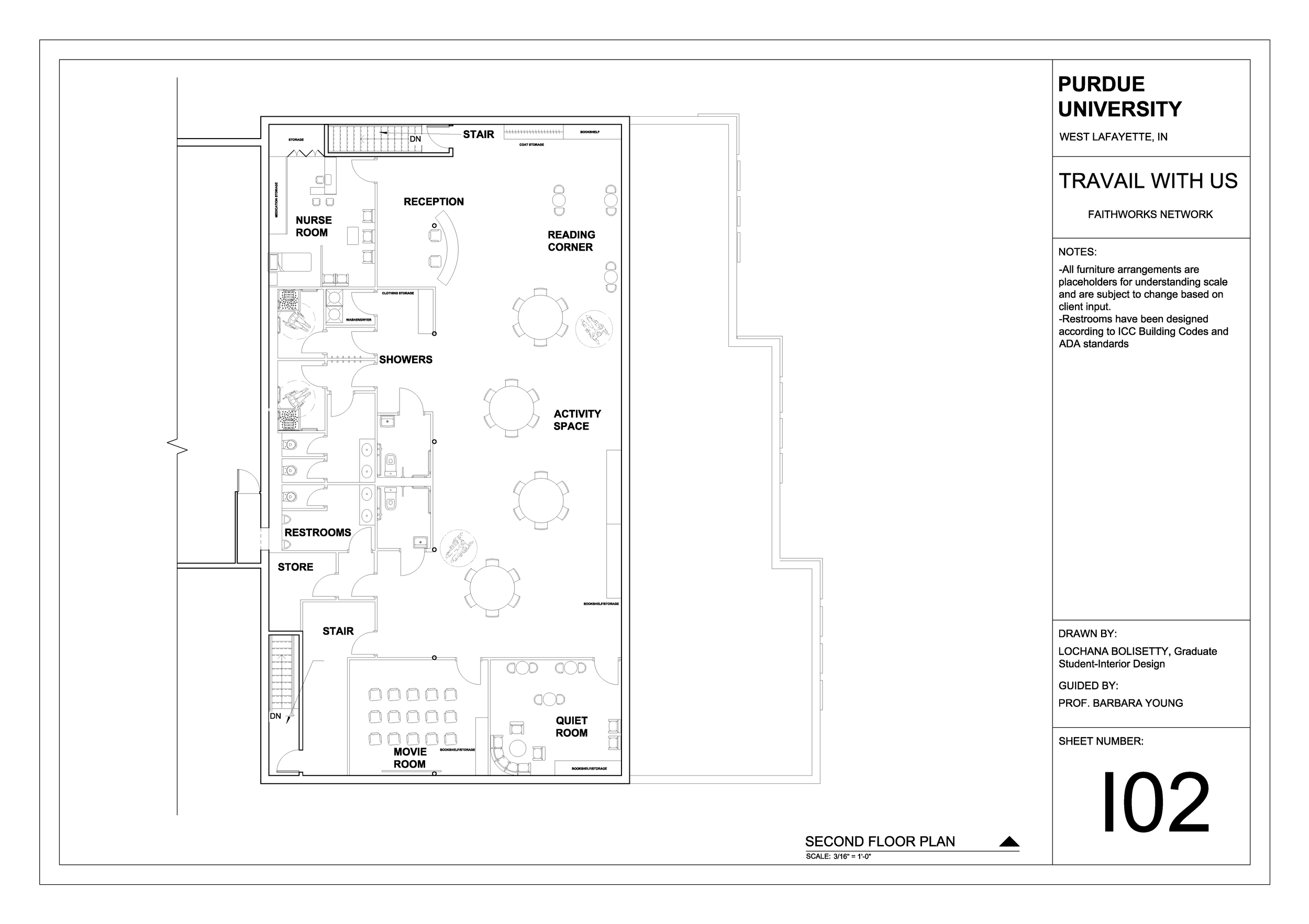
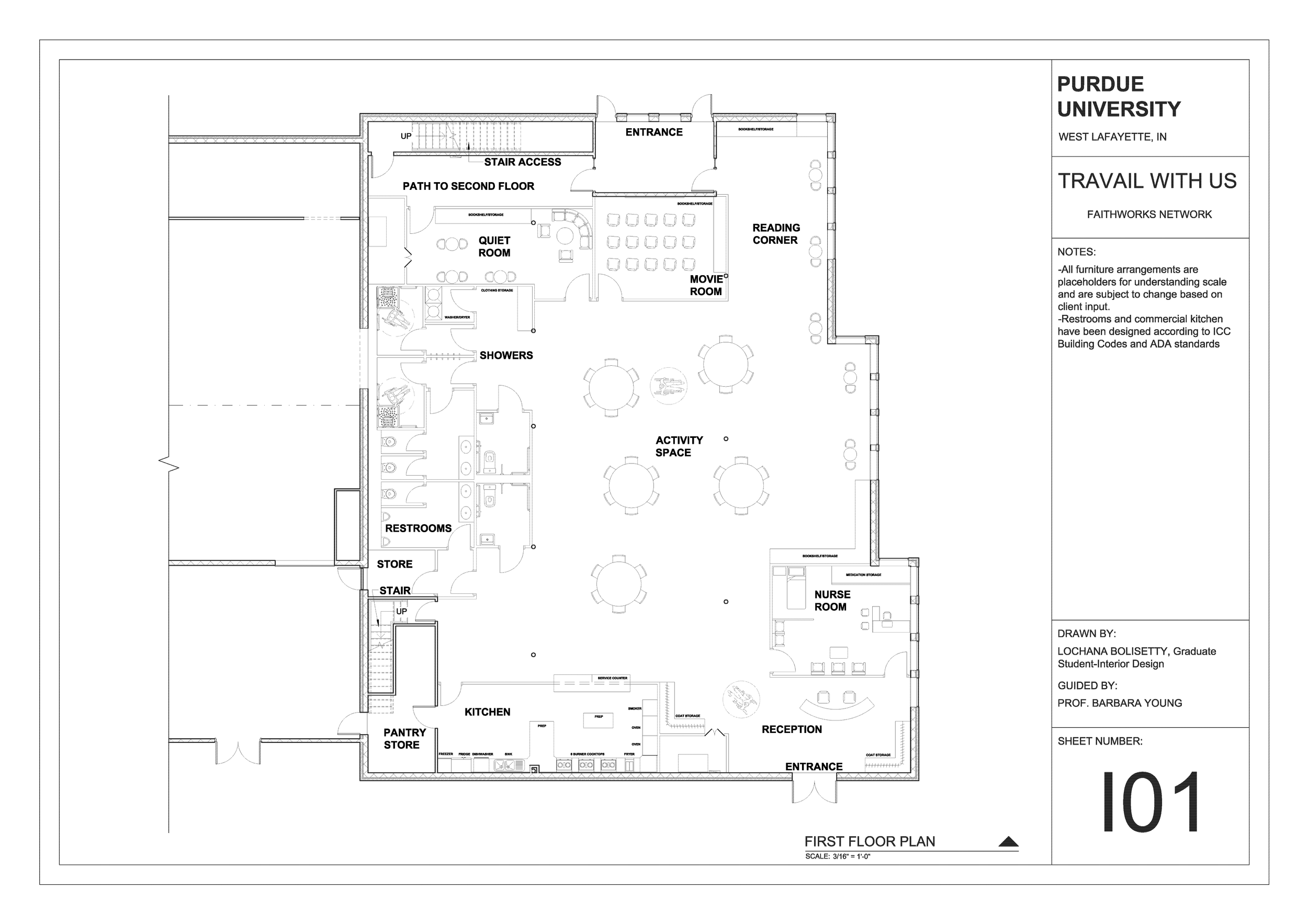
Below are the floor plans Lochana developed:


Graphic design

In parallel, I developed a language of forms and colors to express Travail With Us’s branding, drawing from their existing identity elements and their goals for the new space.

Inspiration photo & other color explorations

I continued using the keywords (vibrant, joyous, welcoming) to develop a body of abstract shapes, putting them into different color and form combinations to create more options for application:


Applying graphics to the environment

Using concepts from Kevin Lynch’s Image of the City, Lochana and I identified landmarks, edges, paths, and nodes in the floor plans. Based on that, we decided what types of graphic interventions would be best suited for each spot.

For example, we identified the main activity space as a landmark and decided to put a large mural on the wall. On the ground floor, we remembered that the space was very long and wide with low ceilings. This space could easily become cramped and unwelcoming.

To open the room up vertically, I designed a mural that plays with scale: giant flowers can make humans feel tiny in comparison and can make the space feel taller. I also chose garden imagery to bring biophilia into the warehouse space. Using our brand’s language of abstract shapes, I depict flowers, leaves, grass, and insects.

Ground floor mural design, visualized in the space:
3D renders completed by Lochana Bolisetty

We followed a similar thought process to develop each of our graphic interventions:

Upper floor mural

Covers 2 walls of the upper floor activity space. Designed to be a large, sweeping landscape from a high perspective to open up the long, low-ceilinged, and windowless room.

Tile graphics

Designed for the exterior wall of the commercial kitchen. Provides a graphic indication of an interaction point: the service window.

Final booklet

I designed and copywrote the final booklet to deliver to our client, based on discussions with Lochana and guidance from Professor Barbara Young.

This booklet features 3D renders of key spaces, 2D visualizations of environmental graphics, and written copy to convey our thought process for each design.

Next
Next

'kansha' AR experience